REQUEST A TOUR If you would like to see this home without being there in person, select the "Virtual Tour" option and your agent will contact you to discuss available opportunities.
In-PersonVirtual Tour

$ 3,000,000
Est. payment | /mo
$ 3,000,000
Est. payment | /mo
Key Details
Property Type Commercial
Sub Type Commercial Retail
Listing Status Active
Purchase Type For Sale
Subdivision Central
MLS Listing ID E12611992
Annual Tax Amount $41,719
Tax Year 2025
Property Sub-Type Commercial Retail
Property Description
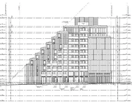
Being Sold by court appointed receiver Under Power Of Sale, "as-is, where-is" & Without Representation & Warranty. Vendor Financing Available. Site Consists Of 2 Vacant 1-Storey Commercial Buildings & 1 Vacant Parcel Of Land. Permitted uses include day care, medical clinic, office, place of worship, retail & restaurant. Water & gas have been disconnected, but electricity is still connected. Building size is estimated based on civil drawings. Property being sold based on land value & development potential. OPA/ZBA Approved Mixed-Use Development Opportunity. 10 Storeys,131 Units & 123,229 GFA. Located In An Established Residential Node, Just North Of Highway 401 & In Proximity To Go Station. Municipal Address Includes 27, 29 & 31 Harwood Avenue S.
Location
Province ON
County Durham
Community Central
Area Durham
Zoning Uptown Mixed Use (UC)
Interior
Cooling No
Exterior
Community Features Major Highway, Public Transit
Utilities Available Available
Lot Frontage 150.0
Lot Depth 218.0
Others
Security Features No
ParcelsYN No
Listed by LENNARD COMMERCIAL REALTY

"My job is to find and attract mastery-based agents to the office, protect the culture, and make sure everyone is happy! "



