REQUEST A TOUR If you would like to see this home without being there in person, select the "Virtual Tour" option and your agent will contact you to discuss available opportunities.
In-PersonVirtual Tour

$ 3,700,000
Est. payment | /mo
$ 3,700,000
Est. payment | /mo
Key Details
Property Type Commercial
Sub Type Land
Listing Status Active
Purchase Type For Sale
Subdivision Ingersoll - South
MLS Listing ID X12751684
Annual Tax Amount $11,500
Tax Year 2025
Property Sub-Type Land
Property Description
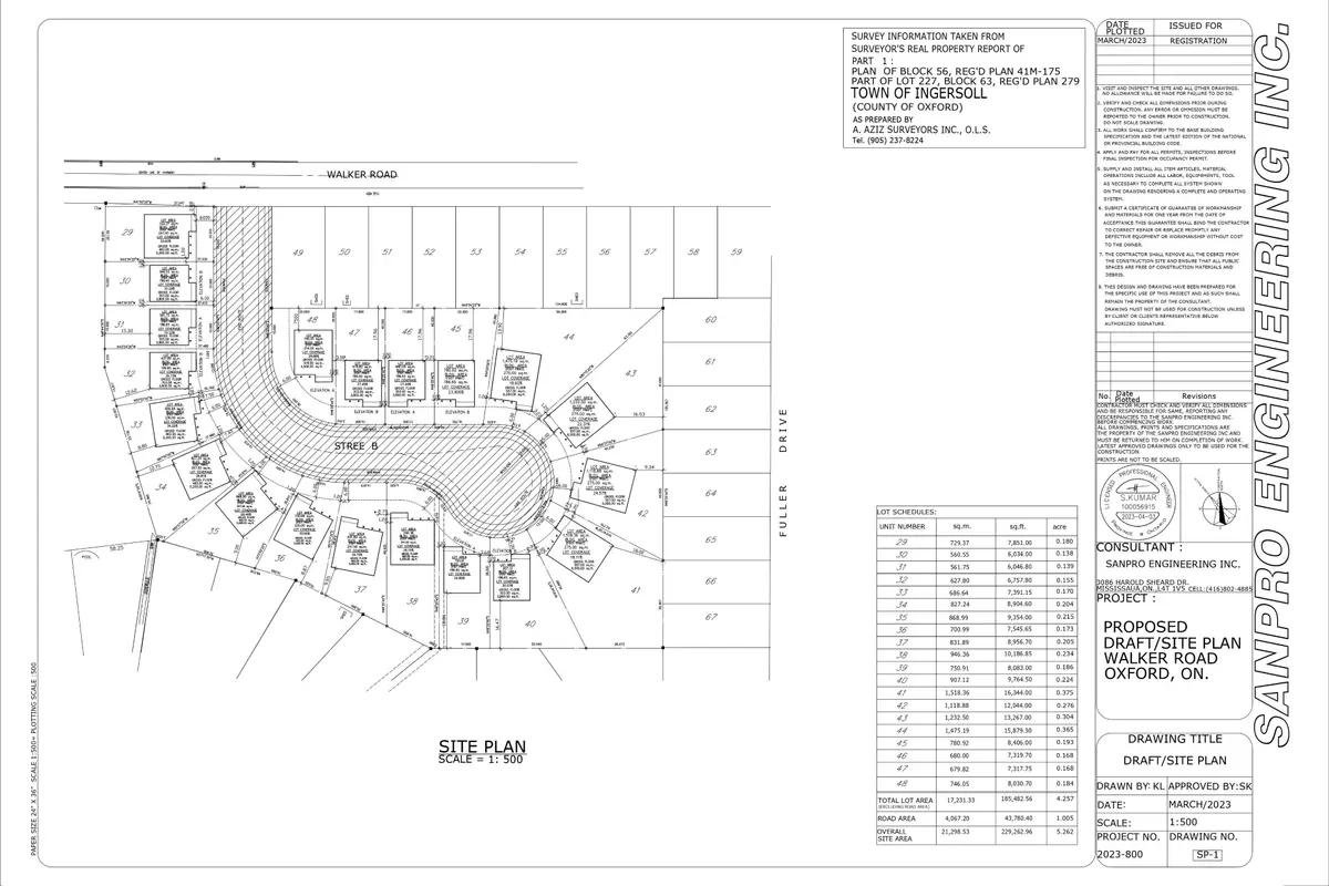
Exceptional development opportunity in the beautiful and quiet Town of Ingersoll. This prime building lot is Draft Plan Approved for 20 detached homes. The property is well-located in an established area, providing an attractive setting for future homeowners seeking small-town charm with convenient access to amenities, schools, and major transportation routes. Buyers may also wish to explore the potential to rezone for semi-detached homes or townhouses, presenting an excellent opportunity to add much-needed density and enhance project returns. Whether you're an experienced developer or an investor looking for your next standout project, this could be the opportunity you've been waiting for.
Location
Province ON
County Oxford
Area Oxford
Exterior
Utilities Available None
Lot Frontage 187.0
Lot Depth 385.0
Others
ParcelsYN No
Listed by TRI-CITY GOLD REALTY INC.
Nearby Locations

"My job is to find and attract mastery-based agents to the office, protect the culture, and make sure everyone is happy! "




