REQUEST A TOUR If you would like to see this home without being there in person, select the "Virtual Tour" option and your agent will contact you to discuss available opportunities.
In-PersonVirtual Tour

$ 26,000,000
Est. payment | /mo
87 Sqft Lot
$ 26,000,000
Est. payment | /mo
87 Sqft Lot
Key Details
Property Type Commercial
Sub Type Land
Listing Status Active
Purchase Type For Sale
Subdivision 611 - L'Orignal
MLS Listing ID X12845912
Annual Tax Amount $4,724
Tax Year 2025
Lot Size 87 Sqft
Property Sub-Type Land
Property Description
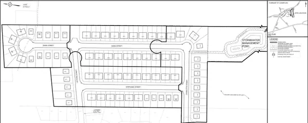
87-acre residential development opportunity in L'Orignal, in immediate proximity to Highway 17 with excellent regional access. Phase 1 (approximately 19.5 acres) holds active draft plan approval permitting 114 units (30 detached, 84 semi-detached), positioning the project for a near-term start, with future expansion potential through Phases 2-4. Cleared land supported by completed engineering and servicing strategy. Approximately one hour from Ottawa and Montreal, and minutes from major retail amenities including Walmart and Canadian Tire. (HST is in addition to sale price).
Location
Province ON
County Prescott And Russell
Area Prescott And Russell
Exterior
Community Features Major Highway
Utilities Available Available
Lot Frontage 204.97
Lot Depth 2056.95
Others
ParcelsYN No
Listed by PMML INC.
Nearby Locations

"My job is to find and attract mastery-based agents to the office, protect the culture, and make sure everyone is happy! "






